จาก หน่อย IP:58.137.10.34
จันทร์ที่ , 10/1/2554
เวลา : 11:25
อ่านแล้ว = ครั้ง
เก็บเข้ากระทู้ส่วนตัว
แจ้งลบ
ส่งหาเพื่อน
|
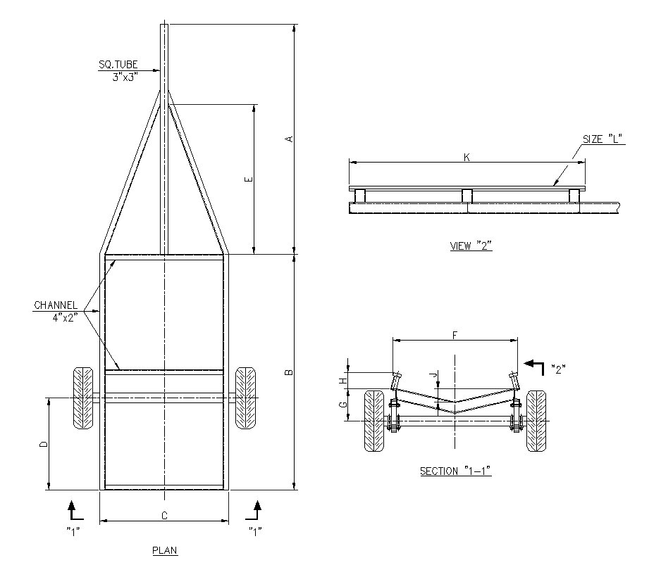
พอดีมีโปรเจคใหม่อยากได้เรือ 14 ฟุตสักลำครับคิดว่าจะทำเทรเลอร์เองครับเพราะผมซื้อของมาครบหมดแล้วครับ
เลยอยากจะขอคำแนะนำจากพี่น้องชาวเรือหน่อยครับ ไฟช่างมันแรงครับ
ผู้ใหญ่ใจดีท่านใดมีข้อมูลขอรบกวนหน่อยนะครับ....ขอบคุณครับ...............................
อ้อ.............. ถ้าผมจะเล่น 14 ฟุต (แต่งบน้อยหน่อยนะ) ใครมีโมลไหนแนะนำบ้างครับ ข้อดีข้อเสียเป็นไง เล็งๆของอู่พชรัชรโทล 2 ชั้นไว้ใครมีข้อมูลอยากรบกวนหน่อยครับ (หลังไมค์ก็ได้นะครับ) แบบว่าช่วงนี้คันๆ อยากเสียตังค์แล้วครับ......................................
หลังไมค์
email : noi.fishing@gmail.com
Tel. : 081-588-6344 (หน่อย) ครับ
............................... ...............................ขอบคุณครับ............................... ...............................

|