WeekendHobby.com
เครื่องมือในการใช้งาน website =>> สมัครสมาชิก | Login | Logout | เปลี่ยนไอคอนส่วนตัว | เกี่ยวกับเรา | ติดต่อโฆษณา         View stat by Truehits.net


รถสตาร์ทไม่ติดครับ
tuk001
จาก ทัก
125.27.245.139
เสาร์ที่ , 18/9/2553
เวลา : 17:40

อ่านแล้ว = 3470 ครั้ง
 เก็บเข้ากระทู้ส่วนตัว
แจ้งตรวจสอบกระทู้
 แจ้งลบ
ส่งหาเพื่อน ส่งหาเพื่อน

       รถ XJโฉมมล 2001 สตาร์ทติด แต่เสียงเหมือนน้ำมันไม่มา เสียงเครื่องดังไม่เต็มสูบ
เร่งไม่ขึ้น แล้วมันก็ดับครับ ช่วยหน่อยครับ



 แสดงความคิดเห็นย่อย แสดงความคิดเห็นย่อย

แจ้งเพื่อเก็บขึ้นกระทู้พิเศษ คลิ๊กที่นี่แจ้งเพื่อนำขึ้นกระทู้พิเศษ

คำตอบแบ่งหน้าละ 30 คำตอบ ขณะนี้คุณอยู่ที่หน้า 2 จาก >>> 1  2  

คำตอบที่ 31
       ตอนนี้รถน้าทักมีอาการ สตาร์ทติดแล้วก็ดับเหมือนกับไม่ได้ปลดล๊อคซีเคียวริตี้(แต่ก็ปลดล๊อกด้วยรีโมทก่อนสตาร์ทแล้ว) เช็คดูแรงดันน้ำมันในรางหัวฉีดก็ปกติ จะลองสตาร์ทแก๊สก็ทำไม่ได้เพราะแก๊สหมด ใครเคยมีอาการนี้ช่วยแนtนำด้วย หมอทัก 0867589102



อีกอย่างนึงลองเร่งเครื่องซัก 1200 รอบ ประมาณ 1-2 นาที จากนั้นปล่อยคันเร่ง
จาก : ต้นJUC3123(ต้นJUC3123) 24/9/2553 16:42:01 [110.164.249.17]
แล้วถ้ากลับมาเดินเบาได้อาจจะเป็นที่กล่องก็ได้คับ
จาก : ต้นJUC3123(ต้นJUC3123) 24/9/2553 16:42:32 [110.164.249.17]
 แสดงความคิดเห็นย่อย แสดงความคิดเห็นย่อย

toiyip จาก Toiyip 61.91.73.21 ศุกร์, 24/9/2553 เวลา : 16:07   

edit แก้ไขคำตอบ   delete ลบคำตอบ 532813

คำตอบที่ 32
       ลองเปลี่ยนแบ็ตครับ เผื่อสตาร์ทแยะๆแล้วแบ๊ตมันเลยกำลังไม่พอเลี้ยงระบบ



แบตก็เป็นอีกสาเหตุนึงเหมือนกัน ตอนนี้พี่หมอทำไรไปบ้างล้างแล้วคับ
จาก : ต้นJUC3123(ต้นJUC3123) 24/9/2553 16:43:31 [110.164.249.17]
เสร็จแล้วครับพี่ ขอบคุณครับ
จาก : tuk001(tuk001) 25/9/2553 17:54:26 [125.27.250.57]
 แสดงความคิดเห็นย่อย แสดงความคิดเห็นย่อย

tu_ta จาก tu_ta 58.147.93.249 ศุกร์, 24/9/2553 เวลา : 16:20   

edit แก้ไขคำตอบ   delete ลบคำตอบ 532816

คำตอบที่ 33
       ส่งข่าวจากหมอทัก ยังไม่มีแบทลองเปลี่ยน มีข้อสังเกตุว่า บิดกุญแจออนไฟเช็คเอ็นจิ้นไม่ขึ้นครับ



 แสดงความคิดเห็นย่อย แสดงความคิดเห็นย่อย

toiyip จาก Toiyip 61.91.73.21 ศุกร์, 24/9/2553 เวลา : 16:47   

edit แก้ไขคำตอบ   delete ลบคำตอบ 532820

คำตอบที่ 34
       ข่าวล่าสุด ไฟเช็คเอ็นจิ้นไม่ติด น้าทักได้ลองถอดรีเลย์ตัวสีเหลืองๆนอกกล่องฟิวส์ใกล้ๆคันเร่ง แล้วใส่เข้าไปใหม่ ไฟเช็คเอนจิ้นขึ้นปกติแล้ว สตาร์ทติดเครื่องรันปกติไม่ดับแล้วครับ
ใครทราบมั้ยว่ามันเป็นรีเลย์อะไร



ขอบคุณพี่สมคิดที่กรุณาเอื้อเฟื่อข้อมูลและกำลังใจครับ ขอบคุณครับ
จาก : tuk001(tuk001) 25/9/2553 17:53:43 [125.27.250.57]
 แสดงความคิดเห็นย่อย แสดงความคิดเห็นย่อย

toiyip จาก Toiyip 61.91.73.21 ศุกร์, 24/9/2553 เวลา : 17:00   

edit แก้ไขคำตอบ   delete ลบคำตอบ 532822

คำตอบที่ 35
       หมอทัก....กลายเป็นคนใข้ไปแล้วเหรอ เนี่ย อิอิ

มาให้กำลังใจครับ...เหลืองๆๆ เหรอ ต้องเปิด by the book อิอิ............... คง reset บางอย่าง ที่อะไรเค้าค้างอ่ะ.... แต่การถอด relay ก็เหมือนกับ การถอดขั้วแบต หรือ การใส่เข้าไปใหม่ทำให้แน่นขึ้น good contact ไฟใหลสดวก????





 แสดงความคิดเห็นย่อย แสดงความคิดเห็นย่อย

loft60-84 จาก Loft60-84 124.121.191.236 ศุกร์, 24/9/2553 เวลา : 19:28   

edit แก้ไขคำตอบ   delete ลบคำตอบ 532829

คำตอบที่ 36
       โอหรือยัง พรุ่งนี้รถหมอจะมีอะไรเสียอีกเนี่ย. อิอิ...rescue กันครบ................................jeepทั้งคันทำเป็นหมด ได้หมอ กูรู jeep ระดับ professional อีกท่านหนึ่ง....so cool lesson learn !!!





ใช้ได้แล้วครับคุณพี่ลอฟ หายปวดหัวเลยน่ะ
จาก : tuk001(tuk001) 25/9/2553 17:51:19 [125.27.250.57]
 แสดงความคิดเห็นย่อย แสดงความคิดเห็นย่อย

loft60-84 จาก Loft60-84 124.121.40.56 เสาร์, 25/9/2553 เวลา : 09:40   

edit แก้ไขคำตอบ   delete ลบคำตอบ 532912

คำตอบที่ 37
       วันนี้ใช้ได้ปกติ อาจเป็นที่สายไฟเส้นใดเส้นหนึ่งอ่ะครับ
อาจไปโดนมันแล้วมันอาจหลวม เลยทำให้ไฟไม่เข้าเช็ดเอนจิ้น เป็นไปได้ไหมครับ



เป็นไปได้คับอาจจะต้องไล่ดูว่ารีเลย์ที่ถอดออกนั้นควบคุมอะไรอยู่
จาก : ต้นJUC3123(ต้นJUC3123) 25/9/2553 19:51:39 [110.49.29.231]
อาจจะมีการเดินระบบป้องกันไว้เพราะถ้าตัอไฟไม่ให้เข้ากล่อง Check Engine ก็จะไม่ขึ้น
จาก : ต้นJUC3123(ต้นJUC3123) 25/9/2553 19:52:58 [110.49.29.231]
 แสดงความคิดเห็นย่อย แสดงความคิดเห็นย่อย

tuk001 จาก ทัก 125.27.250.57 เสาร์, 25/9/2553 เวลา : 17:50   

edit แก้ไขคำตอบ   delete ลบคำตอบ 532970

คำตอบที่ 38
       ยินดีด้วย....คร้าบ................... happy for using jeep





 แสดงความคิดเห็นย่อย แสดงความคิดเห็นย่อย

loft60-84 จาก Loft60-84 124.121.111.31 เสาร์, 25/9/2553 เวลา : 18:45   

edit แก้ไขคำตอบ   delete ลบคำตอบ 532975

คำตอบที่ 39
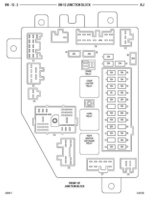
       สวัสดีครับ ขอร่วมประสบการณ์ครับผมดูจากรถผมโฉมมนจะมีชุด Fuse ข้างคันเร่ง เป็นกล่อง Junction Box ครับ ผม Download Circuit diagram จากเวปนี้ครับ http://www.greatlakesxj.com/tech.html ลองดูตำแหน่งจากรูปก็ได้ครับถ้าใช่ ผมพอไล่วงจรได้ อาจเป็นกรณีศึกษาของผมด้วย
ของผมต้องกด Unlock จาก Remote ก่อนเหมือนกันตอนนี้ไม่ไว้ใจระบบปลดล๊อคซีเคียวริตี้ ครับกลัววางยาเจ้าของรถเอง ไม่รู้เขาปลดกันที่ไหนครับถ้าทราบช่วยแนะนำด้วยครับ ถ้าแถวชล ระยอง จันทร์ มีก็ดีครับ เข้า กทม. ไม่ถนัด หลงทิศตลอดครับ
ขอบคุณครับ





 แสดงความคิดเห็นย่อย แสดงความคิดเห็นย่อย

แขกดอย จาก แขกดอย 125.27.96.69 เสาร์, 25/9/2553 เวลา : 21:09   

edit แก้ไขคำตอบ   delete ลบคำตอบ 532984

คำตอบที่ 40
       เห็นด้วยไม่น่าใว้ใจครับ.....

แนะนำปลดออกให้หมดและซื้อ ABT(ผมใช้ abt มาหลายปี ก็โออยู่ ) หรือ ยี่ห้อดีๆๆ มาใส่แทนผมว่าน่าดีที่สุดครับ....ชิ้นส่วนอิเลคทรอนิคส์เค้า มีอายุงาน expried ไปแล้ว กับรถเก่าๆๆๆ ครับ....ค่าต่างๆๆเสื่อมเพี้ยน หรือ มี สารด้านวัสดุเค้าไมเกรชั่น ไม่เสถียร..........


ยังงงอยู่ว่า รถรุ่นใหม่ๆๆ ที่ใช้ เทคโนโลยี่ จะมีการเป็นรถโบราณมีราคาวิ่งได้บนถนน.... จะมีนักสะสมเหมือนรถเก่าๆๆๆ ได้อย่างไร ??? เพราะหาชิ้นส่วนอิเลคทรอนิกมาทดแทนไม่ได้ หมดอายุ scrap อย่างเดียว อิอิ







 แสดงความคิดเห็นย่อย แสดงความคิดเห็นย่อย

loft60-84 จาก Loft60-84 124.121.111.31 อาทิตย์, 26/9/2553 เวลา : 08:06   

edit แก้ไขคำตอบ   delete ลบคำตอบ 533012

      

คำตอบแบ่งหน้าละ 30 คำตอบ ขณะนี้คุณอยู่ที่หน้า 2 จาก >>> 1  2  



website รองรับการใช้งานทุกระบบปฏิบัติการของ PC Tablet SmartPhone ทุกระบบสามารถโพสข้อความและรูปภาพได้โดยไม่ต้องย่อไฟล์
เพื่อความปลอดภัยในการใช้ website WeekendHobby.Com สมาชิก เท่านั้น จึงจะตั้งกระทู้ หรือ ตอบกระทู้ได้ครับ
Login Click ที่นี่
สมัครสมาชิก Click ที่นี่



Since 22, Feb 2001 hit counter View My Stats  Truehits.net      วันจันทร์,9 กุมภาพันธ์ 2569 (Online 1994 คน)