WeekendHobby.com


ชุดยกแบบ DIY
Chaweng
จาก KIA Offroad 531
พุธที่ , 23/6/2553
เวลา : 14:32

อ่าน = 3570
222.123.161.214
       พอดีผมจะยก ซัก 3นิ้ว ใช้วิธีสั่งโรงกลึง แล้วหิ้วไปให้ช่างใส่ให้ หรือบางอย่างก็ใส่เอง
อันนี้ พี่ๆ ในนี้ทำแบบใว้ ขอนำมาลงอีกทีครับ จะได้เป็นกระทู้ ยกสูง DIY :)


.... รองสปริงหน้า ความสูงแล้วแต่ชอบ




เครื่องมือในการใช้งาน website =>> สมัครสมาชิก | Login | Logout | เปลี่ยนไอคอนส่วนตัว | เกี่ยวกับเรา | ติดต่อโฆษณา         View stat by Truehits.net


   
   

คำตอบที่ 1
       รองสปริงหลัง ... หน้า+หลัง ชิ้นละประมาณ 500 รวมสี่ชิ้น ผมทำมา 2000 บาท





Chaweng จาก KIA Offroad 531  222.123.161.214  พุธ, 23/6/2553 เวลา : 14:34   


คำตอบที่ 2
       ต่อโช้คหลัง





Chaweng จาก KIA Offroad 531  222.123.161.214  พุธ, 23/6/2553 เวลา : 14:35   


คำตอบที่ 3
       ต่อกันเซหลัง
... ใช้โตงเตงของปิคอัพ ความยาวตามต้องการ ตัวละ 60 บาท ใหร้านกลึงทำเพิ่มโดยต่อแกนสำหรับยึด เขาคิด 60 บาท ครับ เอาใว้ติดตั้งแล้วจะเอาแบบมาแจกจ่ายครับ





Chaweng จาก KIA Offroad 531  222.123.161.214  พุธ, 23/6/2553 เวลา : 14:43   


คำตอบที่ 4
       ต่อกันโครง ใช้ตัวต่อโช้ค มีขายตามร้านอะไหล่ทั่วไป ตัวละ 50 บาท ช่วยกันโคลงไม่ให้หุบมาก ใช้แล้วดีขึ้นมาก

 แก้ไขเมื่อ : 23/6/2553 14:46:40





Chaweng จาก KIA Offroad 531  222.123.161.214  พุธ, 23/6/2553 เวลา : 14:45   


คำตอบที่ 5
       ดร็อปปีกนกล่าง 2 ตัว เขาคิด 1600 บาท ทำมาแล้ว พ่นสีซะสวยเชียวล่ะ จะลองใส่ดูก่อน ถ้าใส่ได้หรือต้องแก้ไขบางจุด จะเอาแบบที่แก้ไขแล้วมาแจกจ่ายครับ

 แก้ไขเมื่อ : 23/6/2553 14:57:53

 แก้ไขเมื่อ : 24/6/2553 9:38:46





Chaweng จาก KIA Offroad 531  222.123.161.214  พุธ, 23/6/2553 เวลา : 14:50   


คำตอบที่ 6
       เหลือ ...
- ตัวหิ้วหิ้วเฟืองท้าย
- ดร็อปเพลาขับหน้า 3 ตัว
- ปีกนกบน
- แร็คพวงมาลัย

กำลังดำเนินการครับ
พี่ๆ น้องๆ ที่ยกแล้ว ขับโคลงๆ เคลงๆ ดึงซ้ายที ขวาที เพลางัดโน่นนี่ จะได้นำไปสั่งโรงกลึงทำ แล้วลงมือเอง

ส่วนใครที่ยกแล้ว อยากเพิ่มเติมก็ทำเพิ่มได้ครับ
ถูกเงินกว่าเยอะครับ

 แก้ไขเมื่อ : 24/6/2553 9:40:10



Chaweng จาก KIA Offroad 531  222.123.161.214  พุธ, 23/6/2553 เวลา : 14:56   


คำตอบที่ 7
       ยอดเยี่ยมครับ... มีไรนำมาแบ่งปันกัน.



kialaon จาก เกีย ละอ่อน  61.91.73.21  พุธ, 23/6/2553 เวลา : 17:45   


คำตอบที่ 8
      



pudam1 จาก เสือปู  61.90.12.196  พุธ, 23/6/2553 เวลา : 19:30   


คำตอบที่ 9
       แจ๋วเลย ระบบช่วงล่าง หลากหลายดี มีให้เลือก
แก้ไขรูประหว่างรูน็อต 9cm ที่ชี้ตรงขอบ จริงๆต้องชี้ตรงกลางรูเด้อ



phupha จาก ภูผา  183.89.16.54  พุธ, 23/6/2553 เวลา : 22:01   


คำตอบที่ 10
      



sutadl จาก เกียขาว  210.1.9.114  พฤหัสบดี, 24/6/2553 เวลา : 09:00   


คำตอบที่ 11
      



hs1pbn จาก KIA พิดโลก  117.47.166.136  พฤหัสบดี, 24/6/2553 เวลา : 09:16   


คำตอบที่ 12
       สนใจชุดนี้ครับ
-ดร็อปเพลาขับหน้า 3 ตัว
- ปีกนกบน
- แร็คพวงมาลัย
- ดร็อปปีกนกล่าง 2 ตัว 1600 บาท
ไม่ทราบว่าคุณKIA Offroad 531 ได้เขียนแบบไว้หรือเปล่าครับ



kia nueng yudya จาก Kia Nueng Yudya  125.26.17.51  ศุกร์, 25/6/2553 เวลา : 18:49   


คำตอบที่ 13
       ตัวปีกนกล่าง ผมเข้าไปวัดเองตอนให้ช่างเปลี่ยนน้ำมันเกียร์
แล้วก็มาเขียนแบบให้ช่างทำเลยครับ
กะว่าเอาไปแก้ใขตอนใส่ ... แต่ก็คิดว่าคงแก้ใขไม่มากมาย เพราะหลักๆ มันก็แค่ตัวที่คล้ายโตงเตง กับระยะรูน็อตเท่านั้นเอง

ลองเอาไปทำดูครับ
ส่วนผมทำมาแล้วยังไม่มีเวลาไปใส่ครับ

ปล. ทีผมยังงงๆ คือทำใมระยะความยาวของปีกนกตัวหน้ากับหลังมันต่างกันประมาณ 9 mm !!! วัดย้ำตั้งหลายที (หน้า 594mm หลัง 585mm)

.. ถ้าทำแล้วได้มีโอกาศใส่ก่อนผมก็แจ้งจุดที่ต้องแก้ใขด้วยนะครับ :)

 แก้ไขเมื่อ : 26/6/2553 10:09:48





Chaweng จาก KIA Offroad 531  222.123.160.34  เสาร์, 26/6/2553 เวลา : 09:50   


คำตอบที่ 14
       ส่วนรายการ
-ดร็อปเพลาขับหน้า 3 ตัว ยังไม่ได้มุดเข้าไปวัดเลยครับ
กะวัดตอนที่ช่างใส่ปีกนกล่างครับ



Chaweng จาก KIA Offroad 531  222.123.160.34  เสาร์, 26/6/2553 เวลา : 10:00   


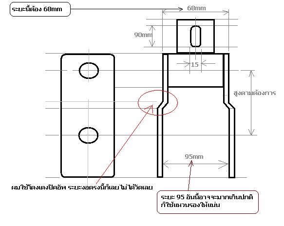
คำตอบที่ 15
       กันเซหลัง.. จะเห็นว่ามันไม่เป๊ะๆ เท่าใหร่ เพราะใช้โตงเตงปิคอัพมาดัดแปลงใช้
เพราะถูกว่า





Chaweng จาก KIA Offroad 531  222.123.160.34  เสาร์, 26/6/2553 เวลา : 12:12   


คำตอบที่ 16
       ปีกนกบนผมกะว่าจะใช้แบบเขียวหวานครับ






Chaweng จาก KIA Offroad 531  222.123.160.34  เสาร์, 26/6/2553 เวลา : 12:58   


คำตอบที่ 17
       ขอบคุณครับ



kia nueng yudya จาก Kia Nueng Yudya  125.26.14.69  เสาร์, 26/6/2553 เวลา : 15:57   


คำตอบที่ 18
       ใส่มาแล้วครับ...
ปีกนกล่างตัวหน้าไม่มีปัญหาอะไรเลย ระยะรูต่างๆ ได้เลย





Chaweng จาก KIA Offroad 531  222.123.161.74  เสาร์, 3/7/2553 เวลา : 12:39   


คำตอบที่ 19
       ตัวหลังก็ได้ครับ ใส่ขันน็อตได้เลย

... แต่ปัญหาของผมเนื่องจากต้องการความแข็งแรงมากๆ เล่นซะเหล็ก 5 mm. และทำคานตรงกลางหนามากๆ มันก็เลยไปใกล้กับเฟืองขับหน้าเกินไป อีกอย่างผมดร็อบแค่ 7cm หรือ 2.5 นิ้วเท่านั้น ระยะต่างๆ ก็เลยใกล้ๆ กันมาก ถ้าผมจะดร็อปเพลาหน้า ผมต้องเฉือนคานตรงที่ลูกศรชี้นี้ออก

แต่สรุปคือ ระยะต่างๆ ที่ผมวัดมา OK เลยครับ






Chaweng จาก KIA Offroad 531  222.123.161.74  เสาร์, 3/7/2553 เวลา : 12:45   


คำตอบที่ 20
       ตัวดร็อปกันเซ





Chaweng จาก KIA Offroad 531  222.123.161.74  เสาร์, 3/7/2553 เวลา : 12:47   


คำตอบที่ 21
       ค่าใช้จ่าย
- รองสปริงหน้า 2.5"-หลัง 3.5" 2000
- ปีกนกล่างหน้า-หลัง 1600 เหล็กหนา 5mm
- กันเซ 120
- ค่าแรงใส่รวมตั้งศูนย์ 1500

ปัญหาที่ต้องแก้ต่อ
-1. ดร็อปปีกนกบน เพราะผมยังไม่ได้ทำ เลยทำให้ล้อบนงุ้มเข้า(ล่างแบะออก) ปรับลูกเบี้ยวสุดแล้วก็ยังแบะอยู่
-2. ตัวดร็อปกันเซ ผมทำแค่ 2" แต่จริงๆ 3.5" ต้องทำใหม่
-3. ดร็อปกันโคลงหน้า ใช้ตัวต่อโช้คมันสั้นไปแค่ 2 นิ้วนิดๆ .... ต้องทำใหม่

ฟิลลิ่ง.. ทางตรงนิ่งดี เหมือนเดิม เวลาผ่านหลุมไม่ดึงพวงมาลัย(แบบที่ผมและหลายท่านเป็น) แต่เวลาขับถ้าหักพวงมาลัยเปลี่ยนเลนหรือหลบอะไรนิดๆ จะปัดๆเลื้อยๆนิดๆ คิดว่าถ้าแก้ 3ข้อตามที่บอกมาน่าจะดีขึ้น

ส่วน...
- ตัวกะดกเพลาหลังคงไม่ทำ เพราะว่าลองวิ่ง 120 km/hr เช้าวันนี้แล้ว เพลามันไม่สะท้านอะไรมาก แทบไม่ต่างเดิม
- ตัวดร็อปเพลาหน้าคงต้องรอหลังจากที่เฉือนคานให้หลบได้ก่อนครับ เอาใว้ทีหลังเพราะยังไม่ได้ไปลุยที่ใหน อีกอย่างก็ยกแค่ หน้า2.5หลัง3.5 เท่านั้นเอง


ใครที่สนใจทำก็ลองดูได้ครับ ราคาก็ตามที่บอก

 แก้ไขเมื่อ : 3/7/2553 13:24:34



Chaweng จาก KIA Offroad 531  222.123.161.74  เสาร์, 3/7/2553 เวลา : 13:05   


คำตอบที่ 22
       รูปโดยรวมครับ





Chaweng จาก KIA Offroad 531  222.123.161.74  เสาร์, 3/7/2553 เวลา : 13:18   


คำตอบที่ 23
       ติดตามอยู่ครับ
ผมหน้า3 หลัง4 ยังเหลืออีกหลายรายการครับ



kia nueng yudya จาก Kia Nueng Yudya  203.146.20.17  จันทร์, 5/7/2553 เวลา : 20:11   


คำตอบที่ 24
       ถ้าแป้นสปริงหลัง เจาะรูตรงกลางแกน ต้าปเกลียว เพื่อใส่แผ่นประกับล้อคสปริงกันหลุด กรณียืดสุดๆก้ดีนะครับ



somdej จาก เกียแดง&ซุปเปอร์เอมี  114.128.119.106  อังคาร, 6/7/2553 เวลา : 08:01   


คำตอบที่ 25
       ผมใส่กันโคลงหลังเข้าไปครับ ทำให้เฟิร์มขึ้นนิดหน่อย

อีกอย่างเวลาล้อหลังข้างนึงลอยและอีกข้างปีนฟุตบาทอยู่ (ลองเมื่อวาน) กันโคลงหลังช่วยดึงล้ออีกข้างที่ลอยอยู่ ไม่ให้ยืดมากเกินไปครับ ลองขยับสปริงขณะลอยก็แน่นดีครับ แสดงว่ากันโคลงช่วยได้พอสมควรครับ





Chaweng จาก KIA Offroad 531  222.123.161.68  อังคาร, 6/7/2553 เวลา : 10:52   


คำตอบที่ 26
       เห็นแล้วอยาก...

http://www.youtube.com/watch?v=eXI8eq43hX0&feature=fvw
http://www.youtube.com/watch?v=h19wDrUjU_4&feature=related
http://www.youtube.com/watch?v=HE0Oo2UqxV0&feature=related
http://www.youtube.com/watch?v=1gk-K3X3m-s&feature=related



kun dej จาก ขุนเดช-549  169.252.4.21  พฤหัสบดี, 8/7/2553 เวลา : 10:09   


คำตอบที่ 27
       ขอ update ตัวต่อปีกนกบนครับ





chaweng จาก KIA Offroad 531  114.128.31.217  จันทร์, 16/8/2553 เวลา : 20:41   


คำตอบที่ 28
       ด้านล่างขันสกรู





chaweng จาก KIA Offroad 531  114.128.31.217  จันทร์, 16/8/2553 เวลา : 20:42   


คำตอบที่ 29
       เนื้อเหล็กเหลือประมาณครึ่งๆ





chaweng จาก KIA Offroad 531  114.128.31.217  จันทร์, 16/8/2553 เวลา : 20:44   


คำตอบที่ 30
       อีกมุม....

เดี๋ยวติดตั้งเสร็จจะมาลงอีกทีครับ




... ขอ comment ด้วยครับ





chaweng จาก KIA Offroad 531  114.128.31.217  จันทร์, 16/8/2553 เวลา : 20:47   


คำตอบที่ 31
       ในฐานะผมผู้สร้างเขียวหวาน เจอปัญหาตัวนี้มาแนะนำ...
คือลูกหมากบนหลุดจากบ่าคอม้า ในสนามแข่งเส้นชัยเห็นใกล้ๆ ลูกหมากบนหลุดล้อพับ ตกรอบ...
แก้ตามรูป กลึงล้าง(สีแดง)ออกเพื่อให้น๊อดยึดขันเกลียว มีกำลังบีบน๊อตลูกหมากให้แน่น...





WAR จาก WAR  124.122.212.3  จันทร์, 16/8/2553 เวลา : 22:43   


คำตอบที่ 32
       คำตอบที่ 16
ปีกนกบนผมกะว่าจะใช้แบบเขียวหวานครับ

คำตอบที่ 28
ด้านล่างขันสกรู

16+18 ไม่ค่อยเคลีย จะออกมาแบบนี้ไหม?

หมายถึงขันเฉพาะสกรูตัวผู้ของปีกนกบน หรือ ขันสกรูจากคอม้ารับลูกหมากบนเข้าหาตัวรอง(ด้านล่างขันสกรู)...
หรือ (ด้านล่างขันสกรู) เกลียวแบ่งครึ่งประมาณในรูปที่ผมวาดหรือเปล่า...
หรือเกลียวลูกหมากยาวร้อยทะลุคอม้า...





WAR จาก WAR  124.122.212.3  จันทร์, 16/8/2553 เวลา : 22:44   


คำตอบที่ 33
       55555 ฝีมือวาดรูปเรา ไม่เป็นรองใครจริงๆ จะดูออกไหมเนี่ย...



WAR จาก WAR  124.122.212.3  จันทร์, 16/8/2553 เวลา : 22:46   


คำตอบที่ 34
       ช่วงเข้าพรรษา วาดได้สวยงามเลยนะพี่ อิอิ
กำลังดู ประมาณว่ายึดnut ด้านล่าง แทนตัวล็อค จากล็อคแต่ไม่ได้ยึด
(ปีกนกบนล็อคโดย nut ตัวเมียด้านล่าง) ดีกว่ามากๆนะ ผมว่า
....



phupha จาก ภูผา  27.130.20.173  อังคาร, 17/8/2553 เวลา : 01:14   


คำตอบที่ 35
       ขอบคุณพี่ WAR มากๆ เลยครับสำหรับคำตอบที่ 30 ที่ให้เจียขอบเข้าไปเพื่อให้บีบลูกหมากให้มากที่สุด

ส่วนการประกอบผมกะว่าจะติดตั้งแบบรูปนี้ครับ
ด้านล่างนอกจากยึดด้วยน็อตแล้ว ก็จะเชื่อมปิดโดยรอบตามรูปครับ

ปล. ถ้าใช้งานปกติ และปีนโน่นนี่พอสนุกๆ น่าจะใช้ได้มั้ยครับ ส่วนลุยแบบสุดๆ ผมก็คิดว่าไม่ไหวเหมือนกัน

ขอบคุณครับ






chaweng จาก KIA Offroad 531  114.128.29.29  อังคาร, 17/8/2553 เวลา : 11:19   


คำตอบที่ 36
       ปัญหาอีกอัน เพราะว่าไม่เห็นพูดถึง...

คอม้ายึดคันชักคันส่ง ต้องยกขึ้นตามด้วย ยกเท่ากับที่ยก...
มิเช่นนั้นเวลาล้อลอย ล้อหน้า (โท-อิน) ด้านหน้าจะหุบเข้าหากัน ด้านหลังห่างออก...

เมื่อยกคอม้ายึดคันชักคันส่งขึ้นแล้วถ้ายกขึ้นแบบตรงๆเลย อาจใส่ล้อขอบ 15 ออฟเซ็ทน้อยๆไม่ได้ ต้องออฟเซ็ทลบสุดๆ (ล้อยื่นออกนอกตัวรถมาก)...

หรือยกคอม้ายึดคันชักคันส่งขึ้นแล้วแบบเฉียงเข้าในตัวรถ จะใส่ล้อได้ทุกขนาด แต่ต้องแก้ตัวปรับมุม โท-อิน กลึงล้างตัดปลาย ทั้งสองข้างให้สั้นลง...

ตัวกลึง ที่ด้านบนยึดเหมือนเดิม ตัวร้อยน๊อตล็อกต้องไม่หลวม ไม่งั้นปีกนกบนหลุดจากคอม้าได้...

ทำเสร็จแล้ว ลุยได้เหมือนใส่ชุดแต่งชื่อดังทั่วไป มั่นใจซะอย่างเพราะลงมือทำเอง ภูมิใจด้วย...



WAR จาก WAR  119.46.218.1  อังคาร, 17/8/2553 เวลา : 14:26   


คำตอบที่ 37
       คันชัก-คันส่ง ผมกะว่าจะทำแบบนี้ครับ ...ไม่แน่ใจว่าเป็นของเขียวหวานรึเปล่า?
ถ้าทำแบบนี้ คงไม่เกิดปัญหาแบบ คำตอบที่ 36 ที่พี่ WAR บอกใช่มั้ยครับ





chaweng จาก KIA Offroad 531  114.128.29.29  อังคาร, 17/8/2553 เวลา : 15:01   


คำตอบที่ 38
       คันชัก-คันส่ง ตัวนี้ยังอยู่ที่บ้านผมเลย ตอนนั้นก็ลองผิดลองถูกไปเรื่อยๆ ไม่ได้แก้อาการที่ว่านั้นเลย...

คันชักคันส่งใช้แสตนดาร์ทดีกว่า...

****** และจำเป็นต้องยกคอม้าขึ้นรับคันชักคันส่งด้วย...******

เห็นเวปๆว่า ท่านเจ้ากรมฯ ก็ยกคอม้ารับคันชักคันส่งด้วยเหมือนกัน...



WAR จาก WAR  119.46.218.1  อังคาร, 17/8/2553 เวลา : 15:15   


คำตอบที่ 39
       ขอบคุณมากครับ พี่ WAR

ถามความเห็นพี่อีกนิดครับ ว่าต่อปีกนกบนที่ผมกำลังทำอยู่นี้
..กับแบบของเสี่ยเพิ่มตามรูปนี้ อย่างใหนใว้ใจได้มากกว่ากันครับ





chaweng จาก KIA Offroad 531  114.128.29.29  อังคาร, 17/8/2553 เวลา : 16:51   


คำตอบที่ 40
       แบบของเสี่ยเพิ่ม (แทบ)ไม่ต้องยุ่งกับคอม้าเลยครับ...



WAR จาก WAR  119.46.218.1  อังคาร, 17/8/2553 เวลา : 17:15   


คำตอบที่ 41
       แสดงว่าของแบบเสี่ยเพิ่มแข็งแรงกว่าและไม่ต้องทำตรงคันชัก-คันส่งเพิ่มอีกใช้มั้ยครับ

เพราะจริงๆ แล้วผมทำมาทั้ง 2 แบบ แรกๆ คิดว่าแบบเสี่ยเพิ่มไม่ค่อยแข็งแรง และจะทำให้ศูนย์ล้อเพี้ยนบ้าง ก็เลยไปสั่งทำแบบเขียวหวานครับ

.. ถ้าพี่ WAR เชียร์แบบเสี่ยเพิ่ม ผมก็ใช้แบบเสี่ยเพิ่มดีกว่าครับ

ขอบคุณครับ





chaweng จาก KIA Offroad 531  114.128.29.29  อังคาร, 17/8/2553 เวลา : 18:17   


คำตอบที่ 42
       อันนี้คือตัวลอกแบบของผมครับ

แสดงว่าต้องเสียเงินฟรีไปอย่างนึง...

ขอบคุณพี่ WAR สุดๆ เลยครับ รู้งี้ถามก่อนสั่งทำดีกว่า...





chaweng จาก KIA Offroad 531  114.128.29.29  อังคาร, 17/8/2553 เวลา : 18:25   


คำตอบที่ 43
       แบบนี้ครับ





chaweng จาก KIA Offroad 531  114.128.29.29  อังคาร, 17/8/2553 เวลา : 18:36   


คำตอบที่ 44
       ทำแบบของเสี่ยเพิ่ม เลยตรงไหนคิดว่าจะไม่แข็งแรงก็เน้นทำตรงนั้นหน่อยก็เท่านั้นเอง...



WAR จาก WAR  124.122.8.180  อังคาร, 17/8/2553 เวลา : 19:40   


คำตอบที่ 45
       ขอบคุณครับพี่ WAR..

แต่ขอถามเพื่อลบความข้องใจหน่อยครับ
ว่าทำไม แบบเสี่ยเพิ่มถึงไม่ต้องไปทำตัวต่อคันชัก-คันส่ง ในขณะที่อีกแบบต้องไปทำ ???
ผมคิดยังใงก็เห็นว่า มันก็ให้ผลกระทบแบบเดียวกัน ไม่น่าต่างกันเลย

ขอให้พี่ขยายความหน่อยครับ จะได้เป็นความรู้ครับ



chaweng จาก KIA Offroad 531  114.128.29.29  อังคาร, 17/8/2553 เวลา : 19:49   


คำตอบที่ 46
       คือแบบเสี่ยเพิ่ม จุดหมุนปีกนกบนและล่าง ขยับลงจากคัชซีเท่ากันทั้งหมด ประกอบแล้ว มุม-ระยะ ปีกนกบนและล่าง มิติไม่ต่างจากสแตนดาร์ท...

แบบเขียวหวาน ตอนแรกไม่ได้ยกคอม้ารับคันชักคันส่ง เมื่อล้อลอย ล้อหุบมาก...
ต่อมา ยกคอม้ารับคันชักคันส่งครึ่งหนึ่งของระยะที่ยก เมื่อล้อลอย ล้อหุบน้อยลง...
ท้ายสุด ยกคอม้ารับคันชักคันส่งเท่ากับระยะที่ยก เมื่อล้อลอย ล้อไม่หุบ...

ก่อนนั้นผมก็ไม่เข้าใจเหมือนกัน แต่มันเป็นแบบที่ผมว่ามาจริงๆ...
สมัยนั้นลงมือทำเองตัวช่วยไม่ค่อยมี พอทำรถลงตัวแมทดีแล้ว ก็เลิกแข่ง...
จนช่างยุทธ มันมาบ้าต่อ มารับช่วงเอารถไปแข่งต่อ ก็ได้แชมป์มาหลายสนาม...



WAR จาก WAR  124.122.8.180  อังคาร, 17/8/2553 เวลา : 20:15   


คำตอบที่ 47
       ขอบคุณครับ



chaweng จาก KIA Offroad 531  114.128.29.18  พุธ, 18/8/2553 เวลา : 09:10   


คำตอบที่ 48
       สุดยอดเลยครับ



อนุบาลออฟโรด จาก อนุบาลออฟโรด  114.128.161.184  ศุกร์, 20/8/2553 เวลา : 00:22   


คำตอบที่ 49
       สุดยอดอีกต้องดู ว.ดำ



phupha จาก ภูผา  27.130.48.91  ศุกร์, 20/8/2553 เวลา : 04:44   


คำตอบที่ 50
       ติดตามครับ



kia nueng yudya จาก Kia Nueng Yudya  203.146.20.17  ศุกร์, 20/8/2553 เวลา : 09:55   


คำตอบที่ 51
       เยี่ยมครับลูกหมากปีกนกบนจะได้หายเครียดซะที ?

 แก้ไขเมื่อ : 20/8/2553 23:27:52



ธเนศ จาก เกียดำ  183.89.250.237  ศุกร์, 20/8/2553 เวลา : 23:16   


คำตอบที่ 52
       เข้ามาดู



วิชิต จาก ยืนงง  125.24.210.224  เสาร์, 21/8/2553 เวลา : 08:34   


คำตอบที่ 53
       ทำเสร็จแล้วฝาก...ขอใช้บ้างไดป่าวครับ..พี่พี่ครับ ขอความอนุเคราะห์ด้วยนะครับ



katray จาก katray  125.24.33.32  เสาร์, 21/8/2553 เวลา : 14:34   


คำตอบที่ 54
       ไม่ได้มีโอกาสศึกษาเลยครับ แต่รบกวนพวกพี่ๆขั้นเทพช่วยอนุเคราะห์ให้เอาไปใช้ด้วยนะครับ คิดตังค์เท่าไหร่ครับ ช่วยแจ้งหรือส่ง mail.มาก็ได้ครับ ที่ chanchai@hotmail.com อยากได้จริงๆครับ



katray จาก katray  125.24.33.32  เสาร์, 21/8/2553 เวลา : 14:42   


คำตอบที่ 55
       วันก่อนไปลองใส่ดูแล้ว....เกิดปัญหา
- ผมดร็อปแค่ 6 cm มันเลยติดหูเดิมของ ใส่แล้วไม่สามารถปรับปีกนกได้
- น็อตไปชนโคนเบ้าโช้ค -ต้องเจียปาดออก นั่นคือใส่ได้ แต่การ maintenance ลำบากแน่ๆ
- ทางแก้โดยดร็อปลงมาอีกเป็น 7cm แต่ปีกนกบนจะไปเบียด แขนคันชัก --- แก้โดยถอดตัวแขนคันชักไปตัดต่อเพื่อหลบ ซึ่งก็เป็นการดร็อปคันชัก-คันส่งไปในตัวเลย


... เหนื่อยใจครับ ประกอบกลับ..จ่ายค่าแรง ..แล้วกลับบ้าน ... หาทางอื่นต่อไป

 แก้ไขเมื่อ : 30/8/2553 12:52:05





chaweng จาก KIA Offroad 531  222.123.216.184  จันทร์, 30/8/2553 เวลา : 12:46   


คำตอบที่ 56
       ความดันทุรัง ยังมีอยู่...
2 แบบแรกเก็บใว้ มาทำแบบใหม่



... เล่นปีกนกใหม่เลย





chaweng จาก KIA Offroad 531  222.123.223.75  พุธ, 1/9/2553 เวลา : 16:41   


คำตอบที่ 57
       ทาบแล้วเท่ากันเป๊ะ ...
แบบเดิมชอบหลุดดีนัก เล่นแบบเกลียวเลย เอาแน่นๆ
อย่ารอช้าสั่งทำตัวต่อเลย...

 แก้ไขเมื่อ : 1/9/2553 16:43:55





chaweng จาก KIA Offroad 531  222.123.223.75  พุธ, 1/9/2553 เวลา : 16:42   


คำตอบที่ 58
       ...





chaweng จาก KIA Offroad 531  222.123.223.75  พุธ, 1/9/2553 เวลา : 16:51   


คำตอบที่ 59
       เสร็จแล้วขอก็อปด้วยแล้วกันครับ ติดตามผลงานอยู่ครับ



kia nueng yudya จาก Kia Nueng Yudya  203.146.20.17  พุธ, 1/9/2553 เวลา : 20:04   


คำตอบที่ 60
       สุดยอดครับเก็บหลักฐานไว้ทั้งหมดนะครับ....เผื่อเอาไว้สอบสวนบ้างครับ ไม่เคยคิดอะไรกะเขามั้งเลยเรา





katray จาก katray  125.24.21.52  ศุกร์, 3/9/2553 เวลา : 16:21   


      

Since 22, Feb 2001 hit counter View My Stats  Truehits.net      วัน<%=WeekdayName(Weekday(Date))%>,<%=formatdatetime(date(),1)%> (Online <%=Application("OnlineUsers")%> คน)
                                       

เพื่อลดภาระของ ฐานข้อมูล ซึ่งมีขนาดใหญ่มาก เพราะเวบเปิดมากว่า 10 ปี
จึงทำให้เวบช้าลงมาก ทีมงานจึงขออนุญาต แปลงข้อมูลจาก ฐานข้อมูลหลักเป็น SHTML File
เพื่อลดภาระการทำงานของ ฐานข้อมูลหลักครับ การแปลงฐานข้อมูลนี้ จะทำให้กระทู้นี้
ไม่สามารถตอบคำถามได้อีกต่อไปครับ แต่จะสามารถค้นหาชื่อกระทู้ และ Link ตรงมาที่หน้านี้ได้เหมือนเดิมครับ

ด้วยความนับถืออย่างสูง ทีมงาน Weekendhobby.com


Convert on : 23/8/2554 6:11:36

Error processing SSI file