จาก Love kia
ศุกร์ที่ , 14/11/2551
เวลา : 21:05
อ่าน = 287
118.173.55.134
|
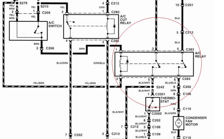
พึ่งสังเกตุว่า Condensor fan motor มันไม่หมุนครับ เช็ค Motor โดยจ่ายไฟตรงมันหมุนปกติ อยากทราบว่าเช็คภาคใหนต่อครับ เท่าที่ใล่ดู มันสั่งงานมาจาก A/C relay เลยอยากทราบว่ามันอยู่ตรงใหนครับ ? ขอบคุณครับ

|