จาก คนโง่
พฤหัสบดีที่ , 6/3/2551
เวลา : 18:54
อ่าน = 1499
58.9.108.209
|
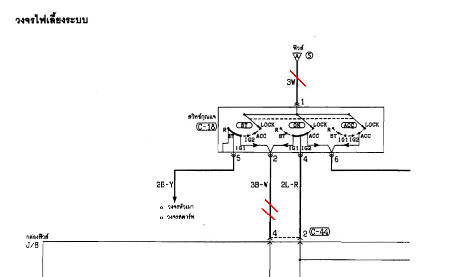
พอดีผมซื้อไทม์เมอร์มือสองมาครับ เลยไม่มีวงจรให้ดู ผมต่อมาแล้ว 2 วันทำไม่ได้เลยครับ ใครพอจะรู้เรื่องช่วยผมด้วยครับ ผมขับสตาด้า 4*4
------สายสีแดงผมต่อเข้ากับไฟ 12 V
------สายสีเหลืองผมต่อเข้ากับสวิตกุญแจที่ตำแหน่ง ACC
------ส่วนสีฟ้าผมต่อเข้าที่ตำแหน่ง IG (สายเส้นสีขาวดำ) ปรากฏว่า
ดับเครืองแล้วดึงกุญแจออกเครื่องยังเดินทำงาน แต่หน้าปัดเรือนไมล์ไฟติดหมดเลยและไม่สามารถที่จะกดรีโมทได้ด้วยครับ ผมควรทำอย่างไรดีครับ

|