คำตอบที่ 5
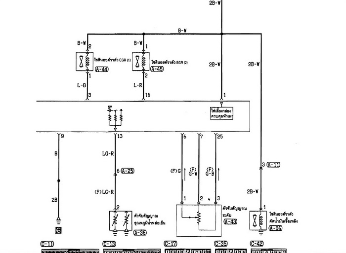
ดูที่ a43 ครับ เป็นความต้านทานแบบปรับค่าได้ แล้วนำแกนกลางต่อกับแกนคันเร่ง เมื่อเราเหยียบคันเร่ง ค่าความต้านทานจะเปลี่ยนไปตามเท้า เมื่อได้ค่าๆหนึ่งสัญญาณ ที่กล่อง ecu รับได้แล้วจึงมีคำสั่งให้ชุดโซลินอด์ยลม สั่งให้ egr วาล์วทำงาน ค่าที่ทำก็คงเป็นช่วงที่เหยียบแล้วควันดำ มากๆครับ
แต่ถ้าพวกดีเซลเกียร์ ออโต 4m4ot จะเอาไว้สั่งให้เกียร์ไฟฟ้าคลิกดาวน์ครับ
ลองดูครับ ไม่ค่อยมั่นใจ
