คำตอบที่ 1
มีหลายบริษัทที่มีความเชี่ยวชาญ และ ไม่มีความเชี่ยวชาญ ที่ดำเนินดำเนินธุรกิจ
ในเรื่องการปรับปรุงคุณภาพของน้ำหล่อเย็น ที่ผมบอกว่ามีความเชี่ยวชาญคือ
- รู้จริงถึงปัญหาของระบบแต่ละประเภท
- รู้ถึงสาเหตุของการเกิดตะกรันแต่ละประเภท
- รู้ถึงเทคโนโลยีแต่ละแบบว่ามีจุดดี จุดด้อยอย่างไร
- รู้ถึงวิธีการคิดตั้งอย่างถูกวิธี ฯลฯ
และแน่นอนที่สุดคือ การเลือกเทคโนโลยีที่เหมาะสมให้กับลูกค้า
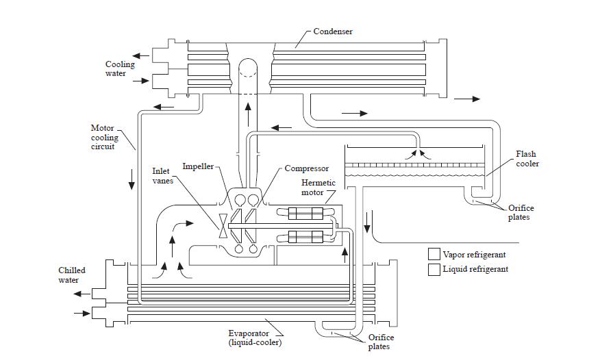
ปัญหาของน้ำหล่อเย็นในระบบทำความเย็นนั้นไม่ได้มีแค่เพียงคราบหินปูนหรือตะกรัน(เกลือของแคลเซียม,แมกนีเซียม) เท่านั้น
ปัญหาทั้งหมดท้งคราบต่าง ๆ และการกัดกร่อน มีศัพท์ที่เรียกว่า "Fouling"
ที่เราต้องรู้จัก Fouling แต่ละประเภท ก็เพื่อที่จะได้เข้าใจสาเหตุการเกิด
และเลือกเทคโนโลยีที่เหมาะสมแก่การนำมาใช้งานนั่นเอง
ในหลักสากลแบ่งออกได้เป็น 4 ประเภทใหญ่ ๆ คือ
1 Sediment พวกตะกอนต่าง ๆ เช่นฝุ่น ขี้โคลน สนิมเหล็ก
ดูเหมือนจะเอาออกได้ง่ายครับ แต่........ ลองดูได้ครับ รถที่วิ่งบนถนนลูกรัง จะเห็นคราบลูกรัง
ติดอยู่ที่กระป๋องพักน้ำ ล้างเฉย ๆ คราบเหล่านี้ไม่ออกนะครับ ต้องมีตัวช่วยถึงจะเอาออกได้
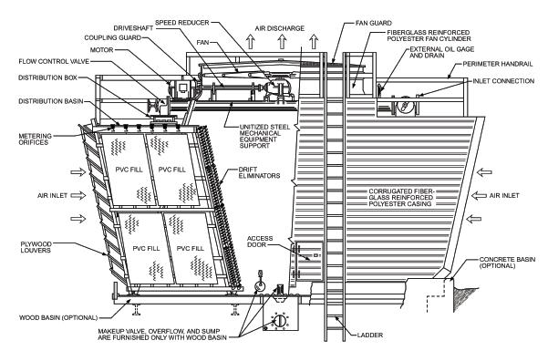
สำหรับน้ำใน Cooling Tower อย่าคิดว่าไม่มีฝุ่นนะครับ ไม่ว่าจะตั้งที่ไหนอย่างไรก็หนีไม่พ้น
2 Crystalization ผลึกเกลือที่เกิดจาก แคลเซียม แมกนีเซียม พูดรวม ๆ ก็หินปูนหรือที่ภาษาฝรั่งใช้คำว่า Scale นั่นแหละครับ
ตัวนี้เป็นตัวป้องกันได้ง่ายที่สุด คือ ปรับสภาพน้ำที่จะมาใช้ให้มีคุณสมบัติที่เหมาะสม และ มีการถ่ายน้ำออกบ้าง
3 Corrosion การกัดกร่อน ไม่ว่าจะจากสารเคมี หรือจาก ออกซิเจนหรือกาซที่ละลายอยู่ในน้ำ ไปทำปฏิกิริยากับโลหะ
แบ่งออกเป็นอีก 5 ประเภทคือ
-Uniform Corrosion
-Pitting Corrosion
-Galvanic Corrosion
-Concentration Corrosion
-Erosion Corrosion
ผมจะกล่าวทีหลังว่าแต่ประเภทเป็นอย่างไร
4 Bio Fouling คราบที่เกิดจากสิ่งมีชิวิต ไม่ว่าจะเป็นสาหร่ายเซลเดียว เชื้อรา และเชื้อโรคต่าง ๆ
เชื้อบางประเภทดำรงค์ชีวิตอยู่ได้โดยไม่ใช้ออกซิเจน แต่ไปดึงออกซิเจนจากซัลเฟท
(ศัพท์ทางวิชาการเรียกว่า Path of Sulfer) แล้วปล่อยอิออนของซัลไฟด์ ซึ่งมีฤทธิ์กัดกร่อนโลหะ
