WeekendHobby.com


พี่ วนิดา แปลน Office ครับ

จาก ลาดพร้าว71
อังคารที่ , 21/2/2549
เวลา : 16:12

อ่าน = 2063
58.11.72.13
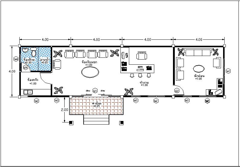
       อย่างนี้ OK รึเปล่าครับ




เครื่องมือในการใช้งาน website =>> สมัครสมาชิก | Login | Logout | เปลี่ยนไอคอนส่วนตัว | เกี่ยวกับเรา | ติดต่อโฆษณา         View stat by Truehits.net


   
   

คำตอบที่ 1
       พอได้



จาก วนิดา เพื่อนไพร  203.113.81.5  อังคาร, 21/2/2549 เวลา : 17:57   


คำตอบที่ 2
       แล้วแบบนี้เป็นงัยครับ





จาก ลาดพร้าว 71  58.11.72.210  พุธ, 22/2/2549 เวลา : 16:18   


คำตอบที่ 3
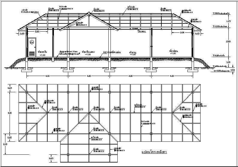
       ด้านหน้าครับ





จาก ลาดพร้าว 71  58.11.72.210  พุธ, 22/2/2549 เวลา : 16:20   


คำตอบที่ 4
       ด้านหน้าครับ





จาก ลาดพร้าว 71  58.11.72.210  พุธ, 22/2/2549 เวลา : 16:21   


คำตอบที่ 5
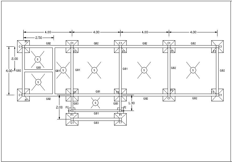
       เสร็จแล้วครับ





จาก ลาดพร้าว 71  58.136.233.240  พุธ, 1/3/2549 เวลา : 18:21   


คำตอบที่ 6
      





จาก ลาดพร้าว 71  58.136.233.240  พุธ, 1/3/2549 เวลา : 18:22   


คำตอบที่ 7
      





จาก ลาดพร้าว 71  58.136.233.240  พุธ, 1/3/2549 เวลา : 18:23   


คำตอบที่ 8
      





จาก ลาดพร้าว71  58.136.233.240  พุธ, 1/3/2549 เวลา : 18:24   


คำตอบที่ 9
      





จาก ลาดพร้าว71  58.136.233.240  พุธ, 1/3/2549 เวลา : 18:24   


คำตอบที่ 10
       งบเท่าไหร่เนี่ย



หนุ่ย จาก จำปาตีนโต  203.155.215.118  พฤหัสบดี, 2/3/2549 เวลา : 11:48   


คำตอบที่ 11
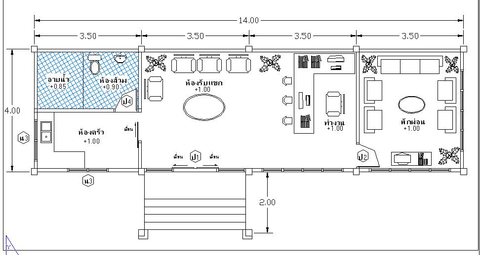
       หวยไม่ถูกกว้าง-ยาวลดลงตามส่วน จำปาสติกเกอร์เรียบร้อยแล้ว



จาก วนิดา เพื่อนไพร  203.113.81.5  พฤหัสบดี, 2/3/2549 เวลา : 12:14   


คำตอบที่ 12
       จะให้ไปเอาเองหรือว่าเอาลงมาให้พี่ท่าน



หนุ่ย จาก จำปาตีนโต  203.155.215.34  ศุกร์, 3/3/2549 เวลา : 08:20   


คำตอบที่ 13
       ถ้าว่างก็แวะมา ตอนเย็นเด้อ



จาก วนิดา เพื่อนไพร  203.113.81.6  ศุกร์, 3/3/2549 เวลา : 12:39   


คำตอบที่ 14
       ไปเย็นกลับเช้าได้มั๊ยครับ



หนุ่ย จาก จำปาตีนโต  203.155.215.47  ศุกร์, 3/3/2549 เวลา : 16:18   


      

Since 22, Feb 2001 hit counter View My Stats  Truehits.net      วัน<%=WeekdayName(Weekday(Date))%>,<%=formatdatetime(date(),1)%> (Online <%=Application("OnlineUsers")%> คน)
                                       

เพื่อลดภาระของ ฐานข้อมูล ซึ่งมีขนาดใหญ่มาก เพราะเวบเปิดมากว่า 10 ปี
จึงทำให้เวบช้าลงมาก ทีมงานจึงขออนุญาต แปลงข้อมูลจาก ฐานข้อมูลหลักเป็น SHTML File
เพื่อลดภาระการทำงานของ ฐานข้อมูลหลักครับ การแปลงฐานข้อมูลนี้ จะทำให้กระทู้นี้
ไม่สามารถตอบคำถามได้อีกต่อไปครับ แต่จะสามารถค้นหาชื่อกระทู้ และ Link ตรงมาที่หน้านี้ได้เหมือนเดิมครับ

ด้วยความนับถืออย่างสูง ทีมงาน Weekendhobby.com


Convert on : 26/8/2554 7:08:39

Error processing SSI file