WeekendHobby.com
เครื่องมือในการใช้งาน website =>> สมัครสมาชิก | Login | Logout | เปลี่ยนไอคอนส่วนตัว | เกี่ยวกับเรา | ติดต่อโฆษณา         View stat by Truehits.net


ใครเคยใส่สวิชเเอร์ mu ตัวนอกตามในรูปบ้างครับ อยากเอามาใส่ในvega ขอคำเเนะหรือสถานที่รับทำครับ
not12345
จาก disel lover
IP:124.121.200.241

ศุกร์ที่ , 3/8/2555
เวลา : 21:49

อ่านแล้ว = ครั้ง
 เก็บเข้ากระทู้ส่วนตัว
แจ้งตรวจสอบกระทู้
 แจ้งลบ
ส่งหาเพื่อน ส่งหาเพื่อน

       ใครเคยใส่สวิชเเอร์ mu ตัวนอกตามในรูปบ้างครับ อยากต่อใช้เเค่สปีดลม สไลด์อุณหภูมิ ไฟสถานะคอมเพรสเซอร์เเล้วก็ไฟหรี่ตามไฟหน้ารถครับ พวกสวิชเเบ่งลมต่างๆไม่ต้องการใช้ครับ อยากเอามาใส่ในvega ขอคำเเนะหรือสถานที่รับทำครับ

ขอบพระคุณครับ

ขออนุญาติเจ้าของภาพครับ






 แสดงความคิดเห็นย่อย แสดงความคิดเห็นย่อย

แจ้งเพื่อเก็บขึ้นกระทู้พิเศษ คลิ๊กที่นี่แจ้งเพื่อนำขึ้นกระทู้พิเศษ

คำตอบแบ่งหน้าละ 30 คำตอบ ขณะนี้คุณอยู่ที่หน้า 1 จาก >>> 1  

คำตอบที่ 1
       พอเป็นแนวทางนะครับ
http://www.jeepolog.com/UserFiles/downloads/trooper_manual.pdf
http://www.weekendhobby.com/offroad/isuzu/shtml/9468.shtml





ถ้ารับทำก็จะดีมากเลยครับ
จาก : not12345(not12345) 3/8/2555 23:44:37 [124.121.200.241]
เกรงใจครับ งานประจำค่อนข้างยุ่ง เก็บงานไม่ค่อยเรียบร้อยครับ
จาก : iamjate(iamjate) 4/8/2555 10:22:37 [58.136.232.49]
ต้องลองค้นกระทู้เก่าๆ ดูครับ มีทำไปแล้วหลายครันครับ
จาก : iamjate(iamjate) 4/8/2555 10:29:17 [58.136.232.49]
ผมหาไม่เจออะครับ รบกวนขอlinkด้วยครับ เคยเจอเวก้าสีดำทำอยู่คันนึงครับ เเต่หาไม่เจอ
จาก : not12345(not12345) 4/8/2555 16:09:53 [124.122.26.226]
ช่วยหาอยู่ครับ นึกชื่อกระทู้ไม่ออก เดี๋ยวน่าจะเจอครับ
จาก : iamjate(iamjate) 4/8/2555 16:47:02 [58.136.232.49]
 แสดงความคิดเห็นย่อย แสดงความคิดเห็นย่อย

iamjate จาก kero 58.136.232.49 ศุกร์, 3/8/2555 เวลา : 22:57  IP : 58.136.232.49   

edit แก้ไขคำตอบ   delete ลบคำตอบ 7460

คำตอบที่ 2
       หาผู้รับติดตั้งครับ



 แสดงความคิดเห็นย่อย แสดงความคิดเห็นย่อย

not12345 จาก disel lover 124.121.136.126 อาทิตย์, 5/8/2555 เวลา : 17:03  IP : 124.121.136.126   

edit แก้ไขคำตอบ   delete ลบคำตอบ 7513

คำตอบที่ 3
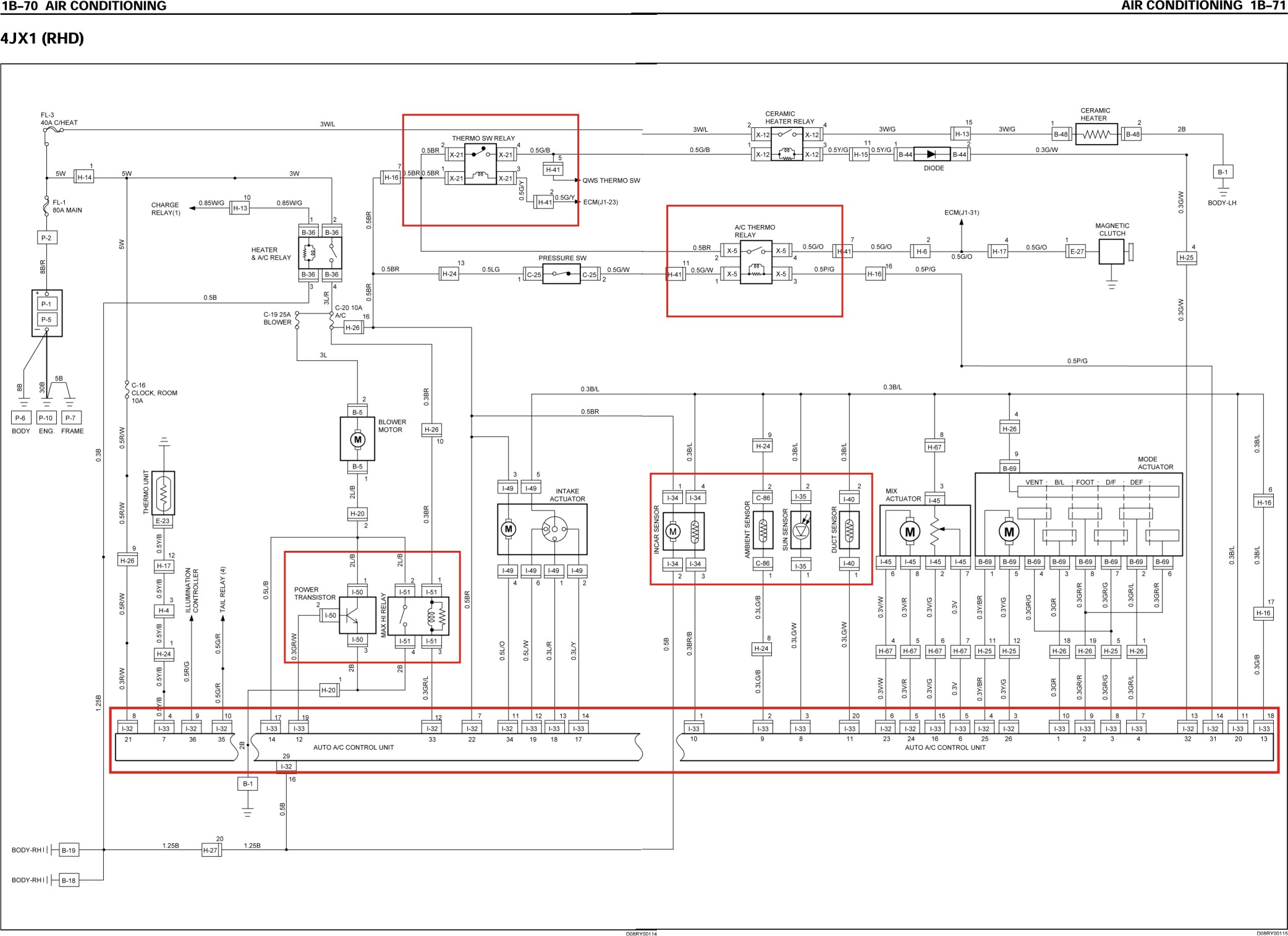
       อยากให้หาอุปกรณ์ ตามกรอบสีแดงให้ได้ครบครับ แล้วช่างจะทำงานได้ง่ายขึ้นมากๆครับ ถ้าจะเอาประมาณนี้นะครับ " อยากต่อใช้เเค่สปีดลม สไลด์อุณหภูมิ ไฟสถานะคอมเพรสเซอร์เเล้วก็ไฟหรี่ตามไฟหน้ารถครับ" รูปใหญ่หน่อยนะครับ รูปเล็กเห็นไม่ชัด





ขอบคุณครับคุณ kero
จาก : not12345(not12345) 5/8/2555 23:18:09 [124.121.136.126]
 แสดงความคิดเห็นย่อย แสดงความคิดเห็นย่อย

iamjate จาก kero 58.136.232.102 อาทิตย์, 5/8/2555 เวลา : 22:44  IP : 58.136.232.102   

edit แก้ไขคำตอบ   delete ลบคำตอบ 7517

คำตอบที่ 4
       http://www.weekendhobby.com/thai2market/Question.asp?ID=39273&group=offroad
ความคิดเห็นที่ 2
ตัดคอจิ้งหรีดทรูเปอร์รุ่นจอโค้ง สภาพสวยยกเซ็ทตามรูป 12000บาท

แยกขาย
คอนโซลจอโค้งพร้อมเรือนไมล์ดีเซล ออโต้ 6000บาท
พวงมาลัยแต่ง Lotus พร้อมแกนวง สวิทซ์ปัดน้ำฝน ยกเลี้ยว สวิทซ์กุญแจ 2500บาท
หม้อลมเบรคชั้นครึ่ง 2500บาท
ตู้แอร์ 1700 บาท Blower 1200บาท ตู้แบ่งลม 1000บาท
ขาคันเร่ง ขาเบรคออโต้ ที่พักเท้า ชุดละ 1200บาท
มอเตอร์ปัดน้ำฝนพร้อมก้านและใบปัด 1300บาท
แผ่นปิดคอจิ้งหรีด 500บาท
ชุดสายไฟ Relay แผงฟิวส์ ต่างๆ 1500บาท

ลองดูนะครับเจรจาดูนะครับ อุปกรณ์ แอร์เกือบครบเลยครับ แทบจะติดตั้งได้เลย





 แสดงความคิดเห็นย่อย แสดงความคิดเห็นย่อย

iamjate จาก kero 101.108.156.88 พุธ, 8/8/2555 เวลา : 15:09  IP : 101.108.156.88   

edit แก้ไขคำตอบ   delete ลบคำตอบ 7558

คำตอบที่ 5
       ของผม ยกตู้และสายไฟมาใส่ทั้งชัดเลยครับ





 แสดงความคิดเห็นย่อย แสดงความคิดเห็นย่อย

e21dtc จาก DTC 180.183.62.13 อังคาร, 24/9/2556 เวลา : 22:27  IP : 180.183.62.13   

edit แก้ไขคำตอบ   delete ลบคำตอบ 12954

คำตอบที่ 6
       ตัวนี้





 แสดงความคิดเห็นย่อย แสดงความคิดเห็นย่อย

e21dtc จาก DTC 180.183.62.13 อังคาร, 24/9/2556 เวลา : 22:28  IP : 180.183.62.13   

edit แก้ไขคำตอบ   delete ลบคำตอบ 12955

คำตอบที่ 7
       ตู้แอร์





 แสดงความคิดเห็นย่อย แสดงความคิดเห็นย่อย

e21dtc จาก DTC 180.183.62.13 อังคาร, 24/9/2556 เวลา : 22:29  IP : 180.183.62.13   

edit แก้ไขคำตอบ   delete ลบคำตอบ 12956

คำตอบที่ 8
       .





 แสดงความคิดเห็นย่อย แสดงความคิดเห็นย่อย

e21dtc จาก DTC 180.183.62.13 อังคาร, 24/9/2556 เวลา : 22:31  IP : 180.183.62.13   

edit แก้ไขคำตอบ   delete ลบคำตอบ 12957

คำตอบที่ 9
       เสร็จแล้ว





 แสดงความคิดเห็นย่อย แสดงความคิดเห็นย่อย

e21dtc จาก DTC 180.183.62.13 อังคาร, 24/9/2556 เวลา : 22:33  IP : 180.183.62.13   

edit แก้ไขคำตอบ   delete ลบคำตอบ 12958

คำตอบที่ 10
       ทดลอง





 แสดงความคิดเห็นย่อย แสดงความคิดเห็นย่อย

e21dtc จาก DTC 180.183.62.13 อังคาร, 24/9/2556 เวลา : 22:34  IP : 180.183.62.13   

edit แก้ไขคำตอบ   delete ลบคำตอบ 12959

      

คำตอบแบ่งหน้าละ 30 คำตอบ ขณะนี้คุณอยู่ที่หน้า 1 จาก >>> 1  



website รองรับการใช้งานทุกระบบปฏิบัติการของ PC Tablet SmartPhone ทุกระบบสามารถโพสข้อความและรูปภาพได้โดยไม่ต้องย่อไฟล์
เพื่อความปลอดภัยในการใช้ website WeekendHobby.Com สมาชิก เท่านั้น จึงจะตั้งกระทู้ หรือ ตอบกระทู้ได้ครับ
Login Click ที่นี่
สมัครสมาชิก Click ที่นี่



Since 22, Feb 2001 hit counter View My Stats  Truehits.net      วันอาทิตย์,7 ธันวาคม 2568 (Online 3941 คน)